20680 207th Ct W, Lakeville, MN 55044
Toggle Navigation
Images
Floor Plans
Map
Previous Photo
Next Photo
Images
Slideshow
Photo Grid
Hide
Previous
Next
Show more
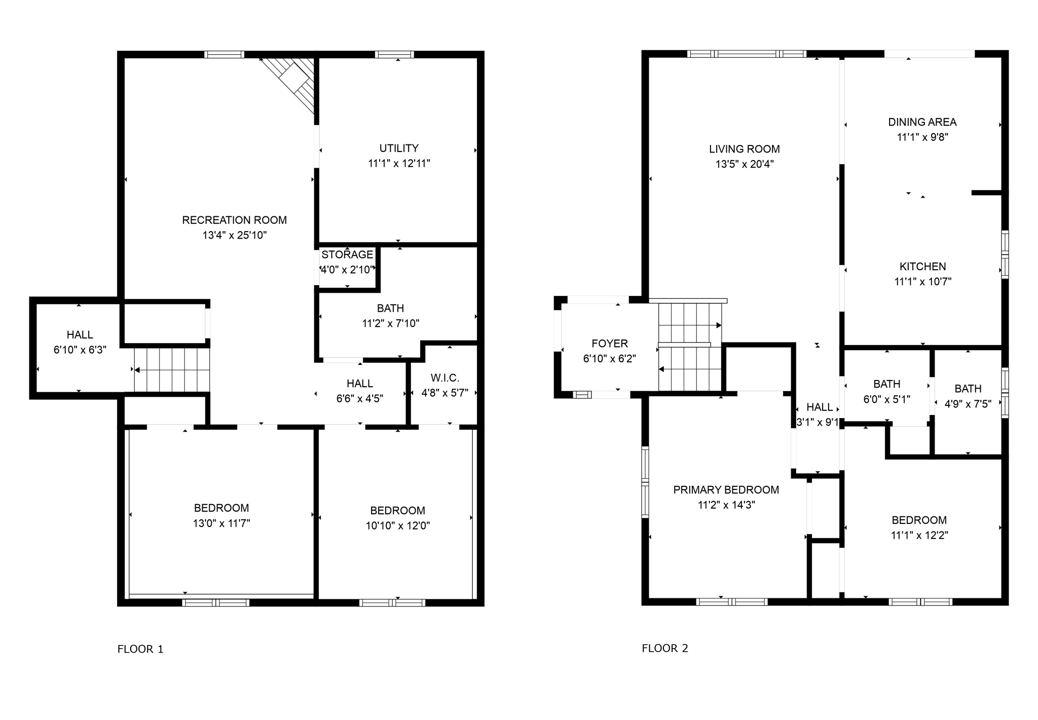
Floor Plans
Slideshow
Photo Grid
Hide
Previous
Next