14836 Hillside Trail, Savage, MN 55378
Toggle Navigation
Images
Floor Plans
Map
Previous Photo
Next Photo
Images
Slideshow
Photo Grid
Hide
Previous
Next
Show more
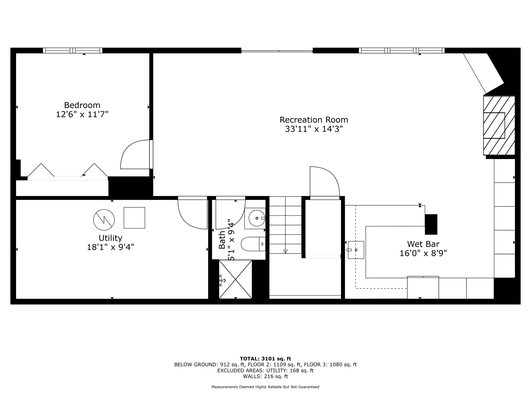
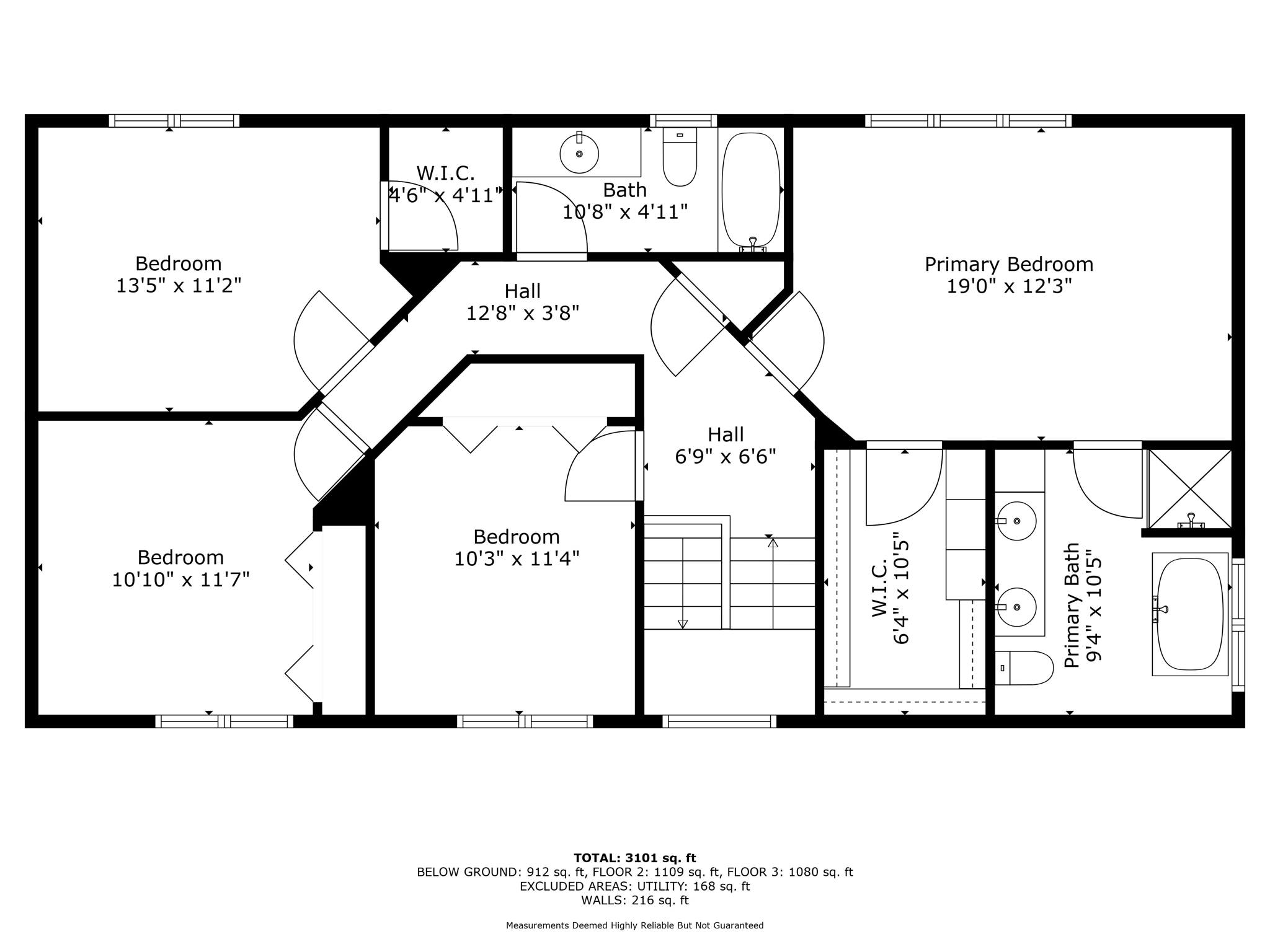
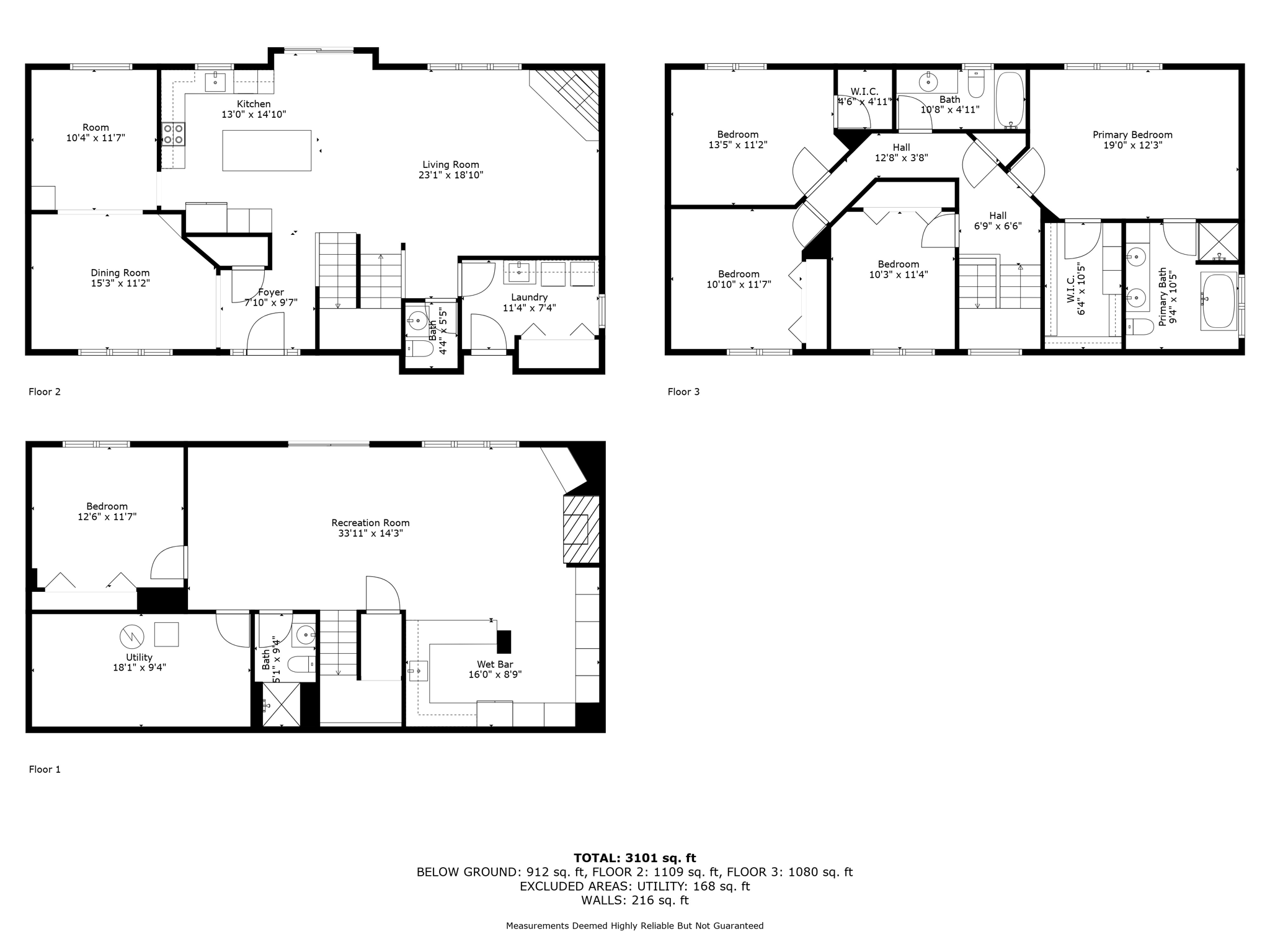
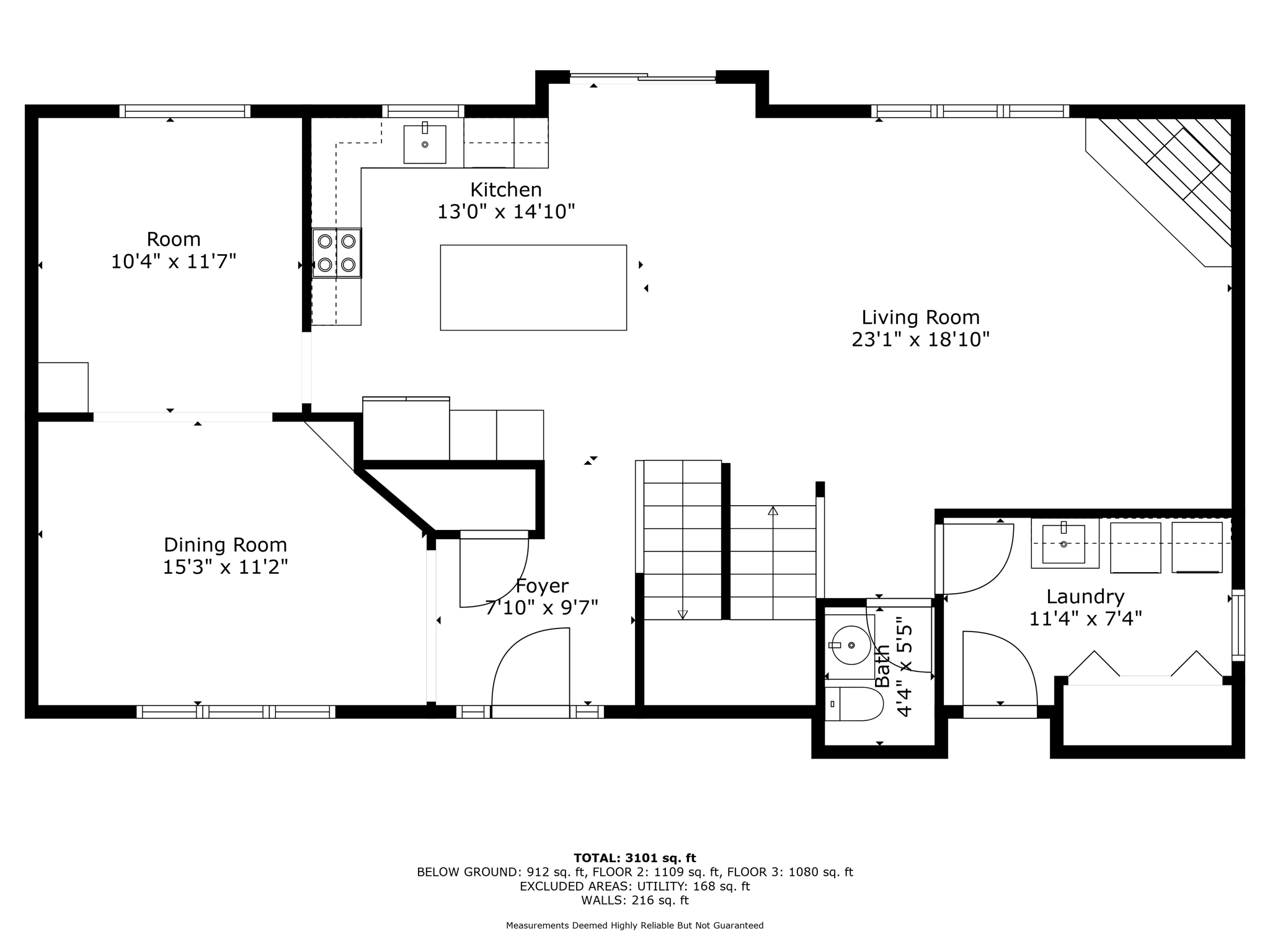
Floor Plans
Slideshow
Photo Grid
Hide
Previous
Next