417 13th Ave N, South Saint Paul, MN 55075
Toggle Navigation
Images
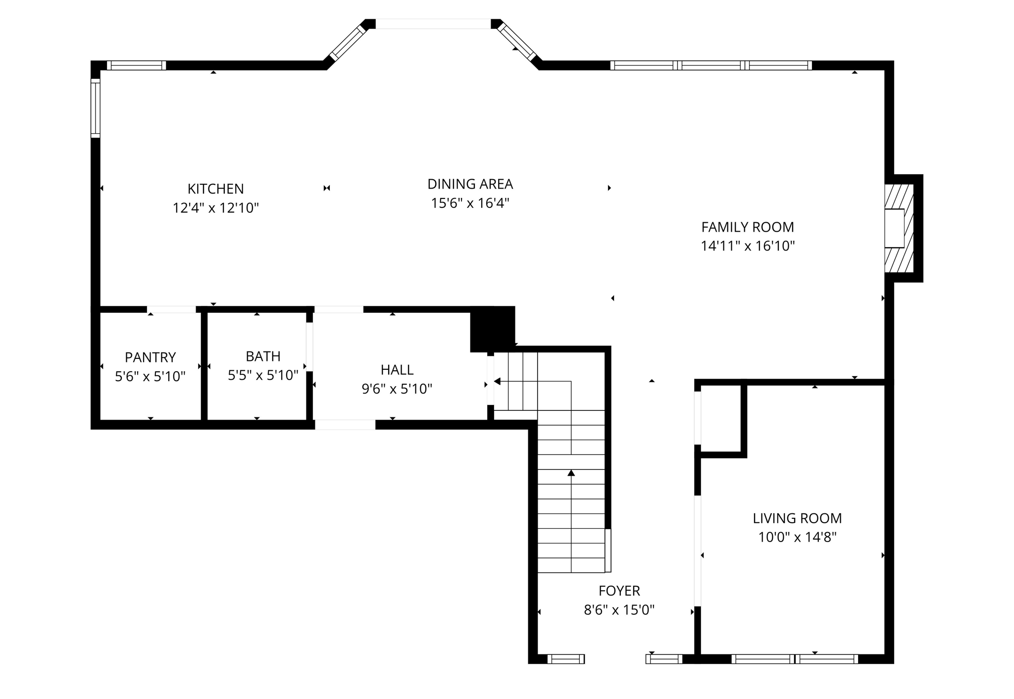
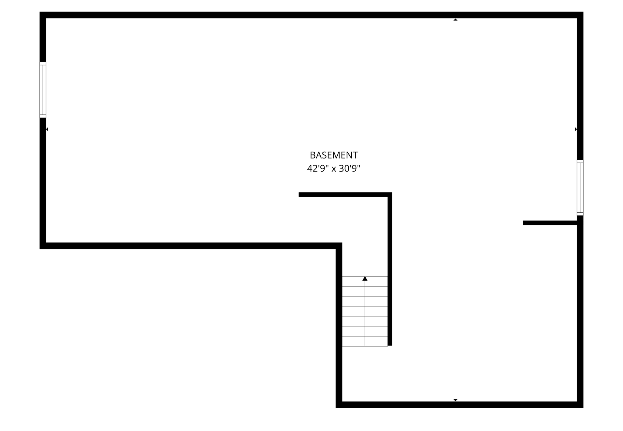
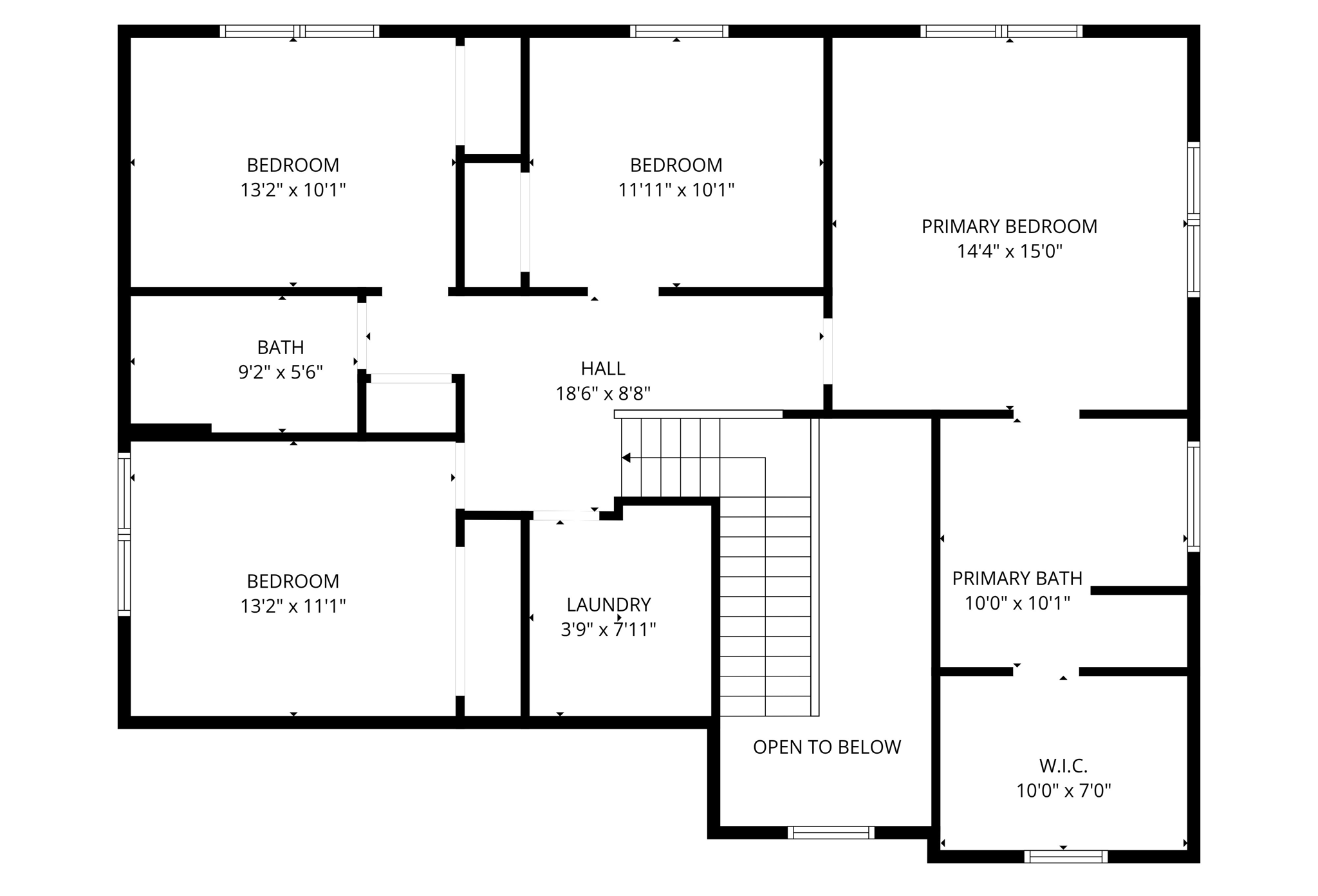
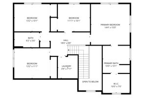
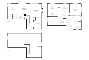
Floor Plans
Map
Previous Photo
Next Photo
Images
Slideshow
Photo Grid
Hide
Previous
Next
Show more
Floor Plans
Slideshow
Photo Grid
Hide
Previous
Next