16268 Tahinka Ct NW, Prior Lake, MN 55372
Toggle Navigation
Images
Floor Plans
3D Tour
Map
Previous Photo
Next Photo
Images
Slideshow
Photo Grid
Hide
Previous
Next
Show more
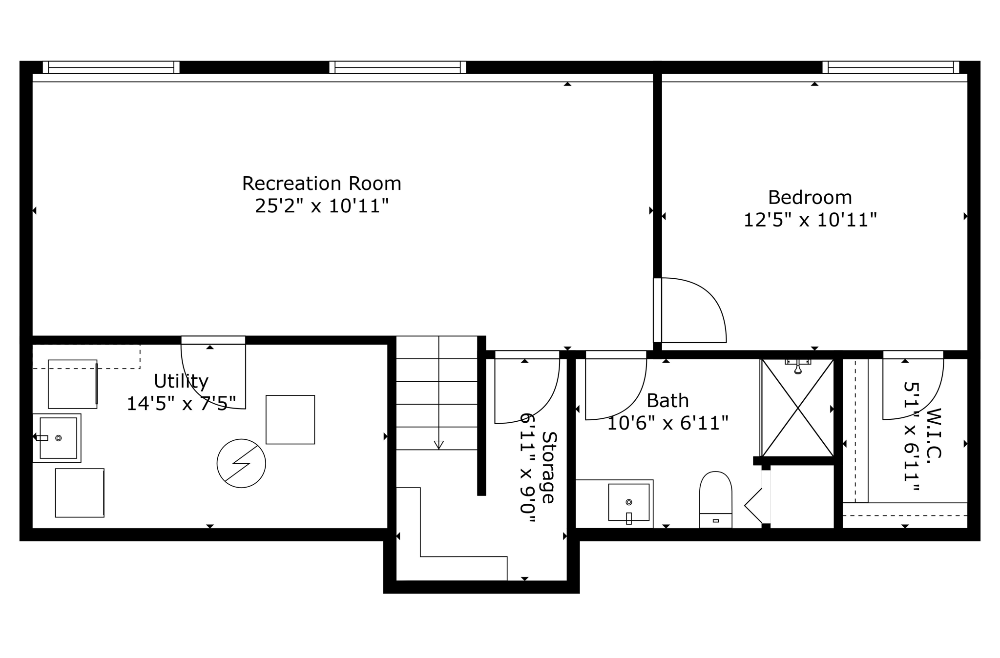
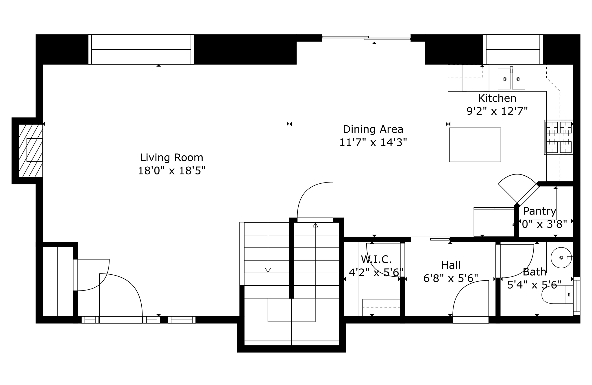
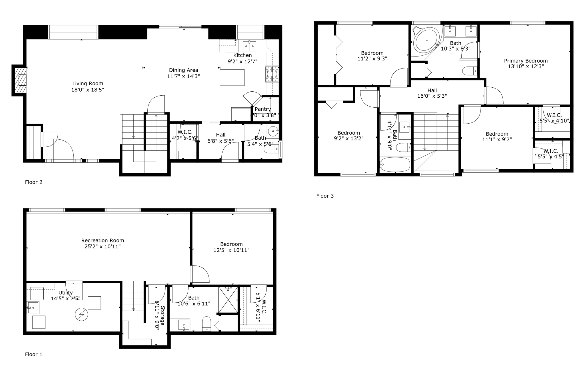
Floor Plans
Slideshow
Photo Grid
Hide
Previous
Next
3D Tour
Content Coming Soon